Cavendish Road, London
£1,250,000 (ShareOfFreehold) - Ref: 2333
321
Overview
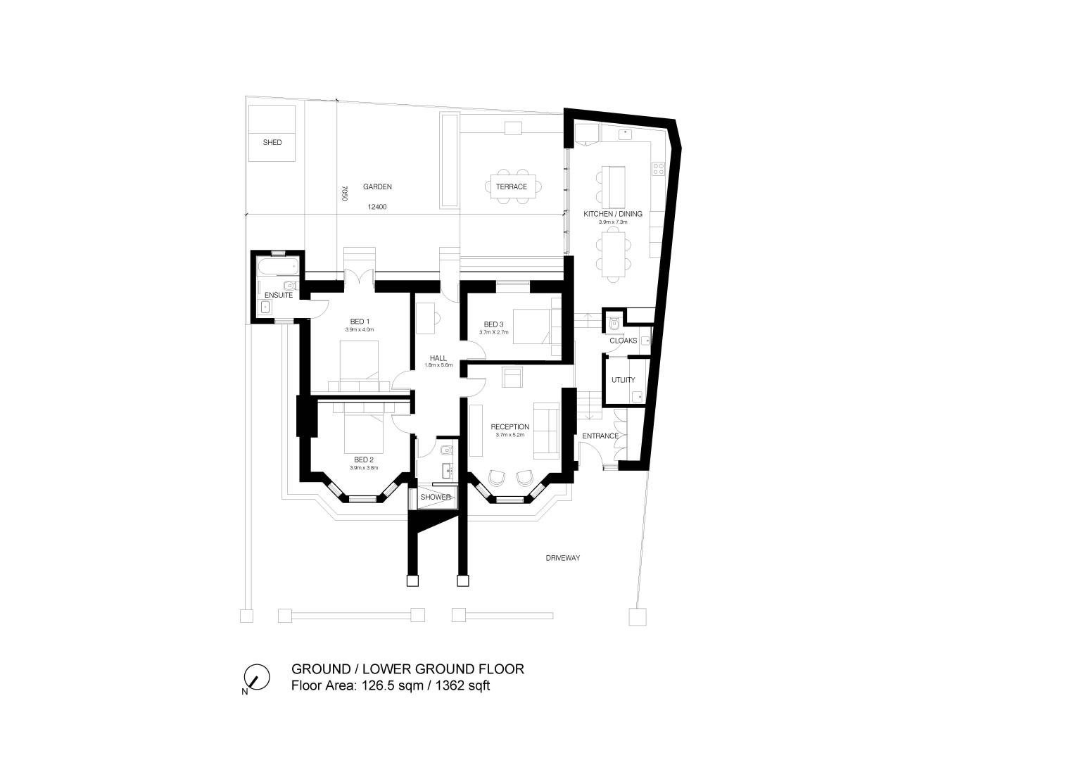
Agreed are delighted to offer for sale this substantial three bedroom ground floor apartment situated in the vibrant area of Kilburn . The property is near to local amenities. Offering one reception room and two bathrooms, the property benefits from having gas central heating and is partially double glazed. Outside is a large private garden to rear. The property has parking for one car via the driveway. The vendor invites you to request a viewing.
Seller Insights:
The property has been meticulously refurbished and extended to create a comfortable, light filled home that wraps around the private south facing garden, with off street parking and a private entrance. A stylish kitchen dining room flows out to the terrace and outdoor kitchen. Three good sized bedrooms are accessed from a generous central hallway with garden access. A separate utility and cloak room keep noise and clutter hidden. The flat is located a short walk from Underground (Jubilee), Overground and Thameslink Stations, with Kilburn, West Hampstead and Queens Park all on the doorstep.
Property Ref : 2333
Photographs
Floorplans
Print this Property
Property Details
Bathroom
Bathtub. En-suite Bathroom.
Shower room
Walk-in shower. Underfloor heating.
Bedroom One
Master Bedroom. Fitted carpet. Door to garden.
Bedroom Two
Double Bedroom. Fitted carpet. Windows to front.
Bedroom Three
Fitted carpet. Windows to rear.
Utility room
Counter tops - Wood. Underfloor heating. Space and plumbing for washing machine. Space and plumbing for tumble dryer. Storage. Porcelain Tiles to floor. Skylight.
Hallway One
Inner hallway. Oak Wood flooring. Door to garden.
Hallway Two
Entrance hall. Underfloor heating. Porcelain Tiles to floor. Front door.
Kitchen
Fitted with a matching range of base units. Including matching island unit. Appliances are Integrated. Counter tops - Marble. Counter tops - Quartz. Dining area. Dishwasher. Extractor hood Overhead. Hob - Induction. Pantry. Wine Fridge. Underfloor heating. Storage. Recently Modernised. Porcelain Tiles to floor. Exposed beams to ceiling. Door to garden. Skylight.
Garden
Garden Shed. Lawn. Patio.
Additonal Information
Tenure:Share of Freehold
EPC Rating:D
Council Tax Band:D
Council Tax Rate (Standard):£2,036
Max. Broadband Speed (estimated):1000 Mbps
Mains Gas:Yes
Mains Water:Yes
Mains Drainage:Yes
Mains Electricity:Yes
Property Reference:2333
GDPR:By submitting an enquiry, you consent to your information being shared with the seller
of this property or the agent representing the property. Your details will only be used to respond to your enquiry and arrange viewings or provide further information.
Property Questionnaire
Questionnaire
Changes Saved
Please be aware of our Terms & Conditions.
If you have already instructed another agent (or agents) to sell your property, you must consider your current agreement(s) as they may be due a fee, even if you sell via Agreed.
Tenure
Lettings
Services
General
Heating
Guarantees
Tenure
All information in this property questionnaire has been provided by the vendor.
Freehold
Leasehold
Share of Freehold
Estate Management Charge (where applicable)
Lease Details:
Ground Rent
Service charge
Start Date
Duration
years
Is the Freehold owned by the Resident Association?
No
Yes
Are you aware of any impending increases?
No
Yes
Previous year's service charge?
Is the property shared ownership?
No
Yes
Who owns the freehold?
What percentage share of the property are you selling?
%
What rent do you pay for the balance?
per annum
Services
Lettings
All information in this property questionnaire has been provided by the vendor.
Do you have Landlords Insurance?
No
Yes
Do you have Buildings Insurance ?
No
Yes
Do you have contents insurance for any contents that you own and will be providing during the tenancy?
No
Yes
Does any part of your property contain Asbestos?
No
Yes
Are any tenants going to be restricted access to any parts of the house, or sub-buildings? (e.g. loft)
No
Yes
Do you plan to or have you arranged for any works to be carried out which may affect the tenant's moving in date or living conditions?
No
Yes
Furnished State
Unfurnished
Part Furnished
Furnished
Please specify the furnishing level of the property
Unfurnished does not mean leaving the property entirely empty. It is usually expected that curtains, carpets and certain white goods will be included such as a fridge and cooker.
Part furnished will usually include curtains, carpets, certain white goods and larger items such as wardrobes (if there isn’t already built in storage space in the bedrooms) beds, dining table & chairs.
Renting a property Fully furnished means that the property is ready to move in. The specifics that will not be included would be down to you (as the landlord) and the tenant to negotiate.
Are you aware of any covenants, which have not been covered within this form?
No
Yes
Are you aware of any other material issues or information which relates to the property or has
anything occurred which may affect the average consumers transactional decision.
No
Yes
Services
Services
All information in this property questionnaire has been provided by the vendor.
Council Tax Band * required
Rate Payable * required
per annum
Lookup your Council Tax Information
If you don't happen to know which council tax band your property falls under, or the current rate payable, its quick and easy to look this up using the link provided here.
Please use tax band 'U' for New Build properties where the
council tax band has not yet been assigned.
Lookup Council Tax
Highest Internet Download Speed * required
Mb/s
Find the Highest Internet Download Speed Available
It's quick and easy to find the highest download speed available for your property.
Use the button provided to open the Ofcom Broadband Availability checker.
You are looking for the highest available download speed shown to be available (with a green check mark ).
Mains Electricity?
No
Yes
Economy tariff?
No
Yes
Mains Water?
No
Yes
Water Meter?
No
Yes
Mains Gas?
No
Yes
Mains Drainage?
No
Yes
Septic Tank?
No
Yes
Cesspit?
No
Yes
Are any of the above services disconnected?
No
Yes
Is the property on a private road?
No
Yes
Tenure
General
General
All information in this property questionnaire has been provided by the vendor.
What year was the property built?* required
If less than 10 years old, is there a valid structural warranty (NHBC etc)?
No
Yes
To your knowledge is the property a Listed Building?
No
Yes
To your knowledge are the grounds affected by a Tree Preservation Order?
No
Yes
To your knowledge is the property located in a Conservation area?
No
Yes
Are you aware of any current proposals or disputes with any individuals or public body which directly affect the property?
No
Yes
Are you aware of any Restrictive Covenants affecting the property? (ie parking, caravan storage, retirement housing, development restraints)?
No
Yes
Is your garage/ parking within your plot?
No
Yes
To your knowledge is the property of a standard construction?
No
Yes
Has your property been extended since 1 April 1991?
This question relates to Council Tax Banding where an extension could lift a property into a higher band. This increase only comes into effect upon sale of the property.
No
Yes
To your knowledge is the property affected by Japanese Knotweed or other invasive species?
Japanese Knotweed (or other invasive non-native plants) may cause serious damage to outbuildings, conservatories, drains,
garden walls, patios, paths and drives. They can be difficult to control and costly to treat, and their presence may affect
property values and deter lenders.
No
Yes
Are there any other material facts that a buyer would need to consider before deciding to consider your property?
This may include, but is not limited to:
Energy efficiency installations such as solar / PV panels or heat pump
Legal issues, such as specialist planning / lease conditions or preventions
Property related issues, such as unfinished works, build defects, non-standard construction or the absence of the appropriate approval / consent on all or part of the property
Title or boundary issues including any rights of way / footpaths crossing the property
Location issues such as flight paths or nearby development plans.
No
Yes
Are there any non-material facts that a buyer would need to consider before deciding to consider your property?
This may include, but is not limited to:
Any Feed In Tarif, Green Deal or energy scheme attached to the property
Specific timescales that a buyer may need to meet
Previous or ongoing disputes with neighbours or complaints against the property
Previous difficulty in obtaining insurance or finance
The property has been subject to a crime, burglary or an event that a viewer would need to be aware of
No
Yes
Services
Heating
Heating
All information in this property questionnaire has been provided by the vendor.
Type of Heating?
Central
Night Storage
None
What fuel does the property use?
Gas
LPG
Oil
Electric
Is fuel supply shared?
No
Yes
Is heating system in good working order?
No
Yes
Are there any defects in the plumbing / domestic hot water system (hot or cold)?
No
Yes
Do you have an immersion heater?
No
Yes
Is the immersion heater in working order?
No
Yes
General
Guarantees
Guarantees
All information in this property questionnaire has been provided by the vendor.
Do you have any guarantees, with original estimates, quotations and invoices for any works carried out on the property:
Timber treatment?
No
Yes
Damp Proofing works?
No
Yes
Wiring Installation?
No
Yes
Central Heating Installation?
No
Yes
Double Glazing?
No
Yes
Heating
Map View
Street View
Local Info
None
All
Dentist
Doctor
Hospital
Train
Bus
Cemetery
Cinema
Gym
Bar
Restaurant
Supermarket
Energy Performance Certificate
The full EPC chart is available either by contacting the office number listed below, or by downloading the Property Brochure
Energy Efficency Rating
CURRENT
D
(66)
POTENTIAL
C
(79)
Environmental Impact Rating : CO2
CURRENT
?
(0)
POTENTIAL
?
(0)
Energy Efficency Rating
Current
Potential
(92+)
A
(81 to 91)
B
(69 to 80)
C
(55 to 68)
D
(39 to 54)
E
(21 to 38)
F
(1 to 20)
G
66
79
England & Wales
EU Directive 2002/91/EC
The energy efficiency rating is a measure of the overall efficiency of a home. The higher the rating the more energy efficient the home is and the lower the fuel bills will be.
Environmental Impact Rating : CO
2
Current
Potential
(92+)
A
(81 to 91)
B
(69 to 80)
C
(55 to 68)
D
(39 to 54)
E
(21 to 38)
F
(1 to 20)
G
0
0
England & Wales
EU Directive 2002/91/EC
The environmental impact rating is a measure of a home’s impact on the environment in terms of carbon dioxide (CO2) emissions. The higher the rating the less impact it has on the environment.
To request a repair online 24 hours a day, please use the button below.
Alternatively you can contact our repair team on xxxxxx during normal office hours.
Your rental list (PDF) should begin downloading shortly
https://agreed.co.uk/info/2333
Cavendish Road, London£1,250,000 (ShareOfFreehold) Sold STC
321
Overview
Agreed are delighted to offer for sale this substantial three bedroom ground floor apartment situated in the vibrant area of Kilburn . The property is near to local amenities. Offering one reception room and two bathrooms, the property benefits from having gas central heating and is partially double glazed. The accommodation comprises bathroom, shower room, bedroom one, bedroom two, bedroom three, utility room, hallway one, hallway two, kitchen and a garden. Outside is a large private garden to rear. The property has parking for one car via the driveway. The vendor invites you to request a viewing.
New Kitchen
Three Bedrooms
Underfloor heating
Close to Local Transport Links
Beautifully Presented
Off Street Parking
Private good sized garden
Recently Refurbished
Home Office
Property Details
BathroomBathtub. En-suite Bathroom.Shower roomWalk-in shower. Underfloor heating.BedroomMaster Bedroom. Fitted carpet. Door to garden.BedroomDouble Bedroom. Fitted carpet. Windows to front.BedroomFitted carpet. Windows to rear.Utility RoomCounter tops - Wood. Underfloor heating. Space and plumbing for washing machine. Space and plumbing for tumble dryer. Storage. Porcelain Tiles to floor. Skylight.HallwayInner hallway. Oak Wood flooring. Door to garden.HallwayEntrance hall. Underfloor heating. Porcelain Tiles to floor. Front door.KitchenFitted with a matching range of base units. Including matching island unit. Appliances are Integrated. Counter tops - Marble. Counter tops - Quartz. Dining area. Dishwasher. Extractor hood Overhead. Hob - Induction. Pantry. Wine Fridge. Underfloor heating. Storage. Recently Modernised. Porcelain Tiles to floor. Exposed beams to ceiling. Door to garden. Skylight.GardenGarden Shed. Lawn. Patio.